Proses instalasi listrik rumah tangga harus dilakukan dengan cara yang tepat dan aman, untuk menghindari terjadinya korsleting maupun kebakaran. Biasanya, proses instalasi ini lebih sering dilakukan oleh seorang kontraktor yang sudah berpengalaman dalam bidangnya.
Meski begitu, hal ini tidak membuat Anda tidak bisa melakukannya sendiri. Ada cara khusus yang bisa dilakukan oleh beberapa orang untuk memasang aliran listrik sendiri di rumahnya. Namun, proses instalasi ini harus dilakukan dengan memperhatikan beberapa hal berikut ini!
7 Hal Penting yang Perlu Diperhitungkan Saat Instalasi Listrik Rumah Tangga
Instalasi listrik harus dilakukan pada setiap rumah, agar rumah tersebut dapat menerima aliran listrik yang bisa digunakan untuk memenuhi kebutuhan sehari-hari para pemiliknya. Sebab, listrik akan sangat dibutuhkan untuk menggunakan berbagai jenis peralatan yang ada di dalam rumah.
Biasanya, pihak PLN hanya menyediakan meteran listrik yang harus dipasang sendiri oleh pemilik rumahnya. Jadi, Anda perlu mengetahui bagaimana cara yang tepat untuk melakukan proses instalasi listrik rumah tangga ini. Untuk mengetahui cara tersebut, simak beberapa tahapan berikut ini:
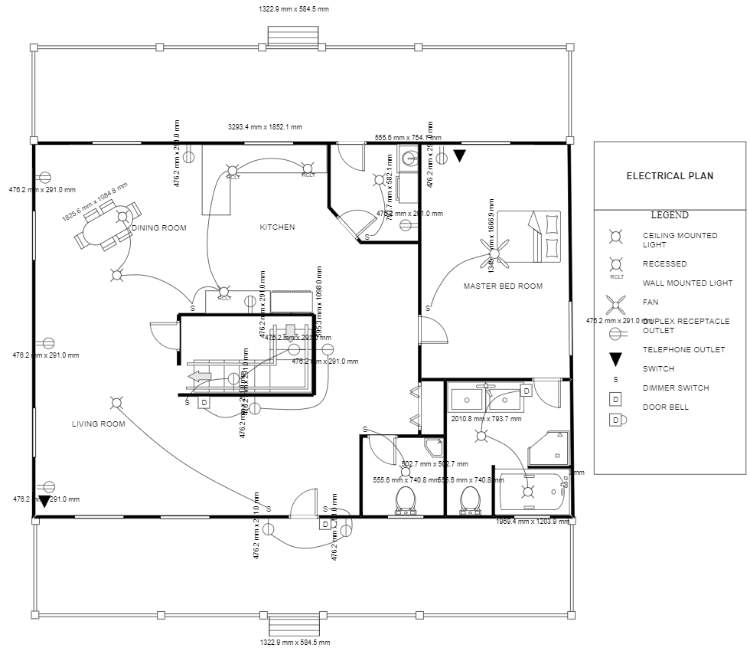
1. Buat Gambar Rencana Berdasarkan Denah Rumah
Sebelum melakukan proses instalasi listrik rumah, Anda perlu membuat gambar rencana yang telah disesuaikan dengan denah rumah tersebut. Denah bangunan yang digunakan dalam hal ini harus terlihat secara jelas, mudah dibaca, dan mudah dipahami oleh orang yang hendak melakukan instalasi.
Ada beberapa jenis gambar rencana instalasi listrik rumah yang bisa digunakan oleh beberapa pemilik rumah di Indonesia, yaitu gambar situasi, gambar diagram garis tunggal, dan gambar detail.
Gambar situasi merupakan gambar yang dibutuhkan untuk mengetahui letak bangunan serta rencana penyambungan listrik. Hal ini berbeda dengan gambar diagram garis tunggal yang akan digunakan pada bangunan sederhana yang membutuhkan proses instalasi sederhana juga.
Sementara untuk gambar detail bisa diartikan sebagai gambar yang meliputi ukuran fisik dan panel, cara pemasangan listrik dan kabel, serta cara kerja dari instalasi kontrol tersebut. Jadi, informasi yang ada di gambar ini terlihat lebih lengkap dari kedua jenis gambar sebelumnya.
2. Mengenali Ukuran Rumah dan Daya Listrik dengan Benar
Hal penting selanjutnya yang harus diperhatikan saat melakukan proses instalasi listrik rumah tangga adalah ukuran rumah serta daya listrik yang hendak dipasang tersebut. Pemilik rumah harus mengetahui ukuran rumahnya terlebih dahulu, untuk mencari tahu ukuran kabel ideal yang dibutuhkan.
Selain itu, Anda juga perlu mencari tahu tentang ukuran ruangan serta daya listrik yang dibutuhkan dalam rumah. Dengan mengetahui ukuran ruangan yang benar, Anda bisa lebih mudah untuk menentukan kabel, lampu, dan sakelar yang akan dipasang di ruangan tersebut.
Sedangkan ukuran daya listrik ini bisa digunakan untuk menentukan ukuran MCB (Miniature Circuit Breaker) yang hendak dipasang di dalam rumah.
3. Mempersiapkan Segala Jenis Peralatan yang Dibutuhkan
Proses instalasi listrik pada rumah ini juga harus didukung dengan berbagai peralatan yang tepat. Mulai dari boks MCB, Earth-leakage Circuit Breaker (ELCB), sakelar ganda, sakelar tunggal, lampu, kabel, isolasi, stop kontak, pipa, palu, alat pemotong, alat pengukur, dan alat-alat lainnya harus disiapkan.
Pastikan semua peralatan yang digunakan dalam proses ini memiliki kualitas yang baik dan aman, sehingga proses instalasi tersebut bisa berjalan secara lebih mudah serta lancar.
Selain beberapa peralatan yang telah kami sebutkan di atas, Anda juga membutuhkan beberapa kebutuhan alat pendukung lainnya seperti alat untuk membuat lubang pada dinding, tang kombinasi, pengupas kabel, dan lain sebagainya.
4. Memahami Jenis Kabel dan Kode Warnanya
Kabel yang digunakan pada proses instalasi listrik ini harus berstandar SNI dan memiliki kualitas yang baik. Kabel yang sudah memiliki standar SNI seperti ini memiliki tingkat keamanan yang lebih tinggi, tidak mudah rusak, dan tidak mudah terkelupas.
Selain itu, penting juga untuk Anda lakukan memahami jenis kabel serta kode warna kabel yang akan digunakan tersebut. Nantinya, kode warna pada kabel ini dapat menunjukkan besaran ukuran kawat konduktor yang digunakan.
Namun, hal ini tidak berlaku pada kabel dengan arus bolak-balik, karena kode warna pada kabel ini tidak berkaitan dengan kapasitas amperenya.
5. Memasang Bahan-Bahan Instalasi Listrik dengan Benar
Cara instalasi listrik rumah tangga selanjutnya adalah memasang bahan-bahan instalasi ini dengan metode yang tepat. Cara memasang bahan-bahan instalasi listrik tersebut adalah:
- Tentukan titik-titik tempat pemasangan sakelar dan stop kontak pada dinding suatu ruangan. Jarak ideal pemasangan kedua komponen ini adalah 125 cm dari lantai. Setelah itu, mulailah membuat lubang pada dinding untuk dijadikan sebagai tempat pemasangan kedua komponen listrik tersebut.
- Buatlah jalur kabel dan pipa dengan membobok dinding menuju ke arah plafon. Kemudian, pasang pipa PVC di jalur tersebut, agar jalur kabel bisa digunakan secara lebih aman di dalam dinding.
- Lakukan proses pemasangan boks MCB dan ELCB yang diletakkan pada dinding dekat pintu utama rumah. Biasanya, kedua boks ini akan diletakkan di dekat KWh meter rumah juga.
- Siapkan 3 jenis kabel untuk dipasang pada jalur instalasi listrik yang telah disiapkan tersebut, yaitu kabel phase (merah), kabel arde (kuning dengan garis hijau), dan kabel netral (biru).
- Lakukan proses pemasangan kabel-kabel lainnya yang dibutuhkan, dan setiap sambungan kabel ini bisa dipasang di dalam kotak, agar kualitas kabel bisa selalu terjaga dengan baik.
- Sambung kabel-kabel tersebut pada setiap baut terminal yang ada di ELCB, sakelar, MCB, dan stop kontak dalam rumah. Jika sudah, tutup jalur kabel yang telah dilapisi dengan pipa PVC sebelumnya dan sambung kabel dari sumber listrik yang berasal dari KWh meter serta MCB utama.
6. Membuat Jalur Khusus untuk Perangkat Berdaya Besar
Setiap rumah yang memiliki perangkat berdaya besar di dalamnya harus dilengkapi dengan jalur khusus, agar tidak mengganggu perangkat elektronik lainnya yang memiliki ukuran daya berbeda.
Ketika perangkat berdaya besar memiliki jalur yang sama dengan perangkat elektronik lainnya, hal ini dapat membuat aliran listriknya tidak berjalan secara stabil. Untuk membuat jalur khusus perangkat berdaya besar ini, Anda membutuhkan alat instalasi listrik rumah tangga seperti yang ada di atas.
Dengan melakukan tahapan ini, keawetan kabel yang digunakan dalam rumah tersebut bisa terjaga secara lebih baik lagi.
7. Grounding Saat Melakukan Instalasi Listrik Rumah
Grounding adalah cara yang bisa dilakukan untuk menghindari terjadinya sengatan listrik yang tiba-tiba membesar. Maka dari itu, mekanisme grounding ini harus dilakukan ketika hendak melakukan instalasi listrik pada rumah.
Pada proses ini listrik dari MCB akan disalurkan ke dalam tanah, sehingga ELCB dan kabel khusus berukuran 4 mm akan dibutuhkan untuk melakukannya. Dengan melakukan grounding pada saat instalasi listrik, hal ini dapat membuat aliran listrik tidak mudah meledak.
Proses instalasi listrik rumah tangga memang membutuhkan perhatian yang lebih tinggi, karena ada beberapa hal penting yang harus diperhatikan di dalamnya.
Untuk itu, Anda perlu mengingat beberapa hal penting yang telah kami sebutkan di artikel ini. Dengan begitu, Anda tidak perlu menyewa jasa kontraktor untuk melakukan proses instalasi listrik ini.






